043
Tori Ann Walk
1/16
Text
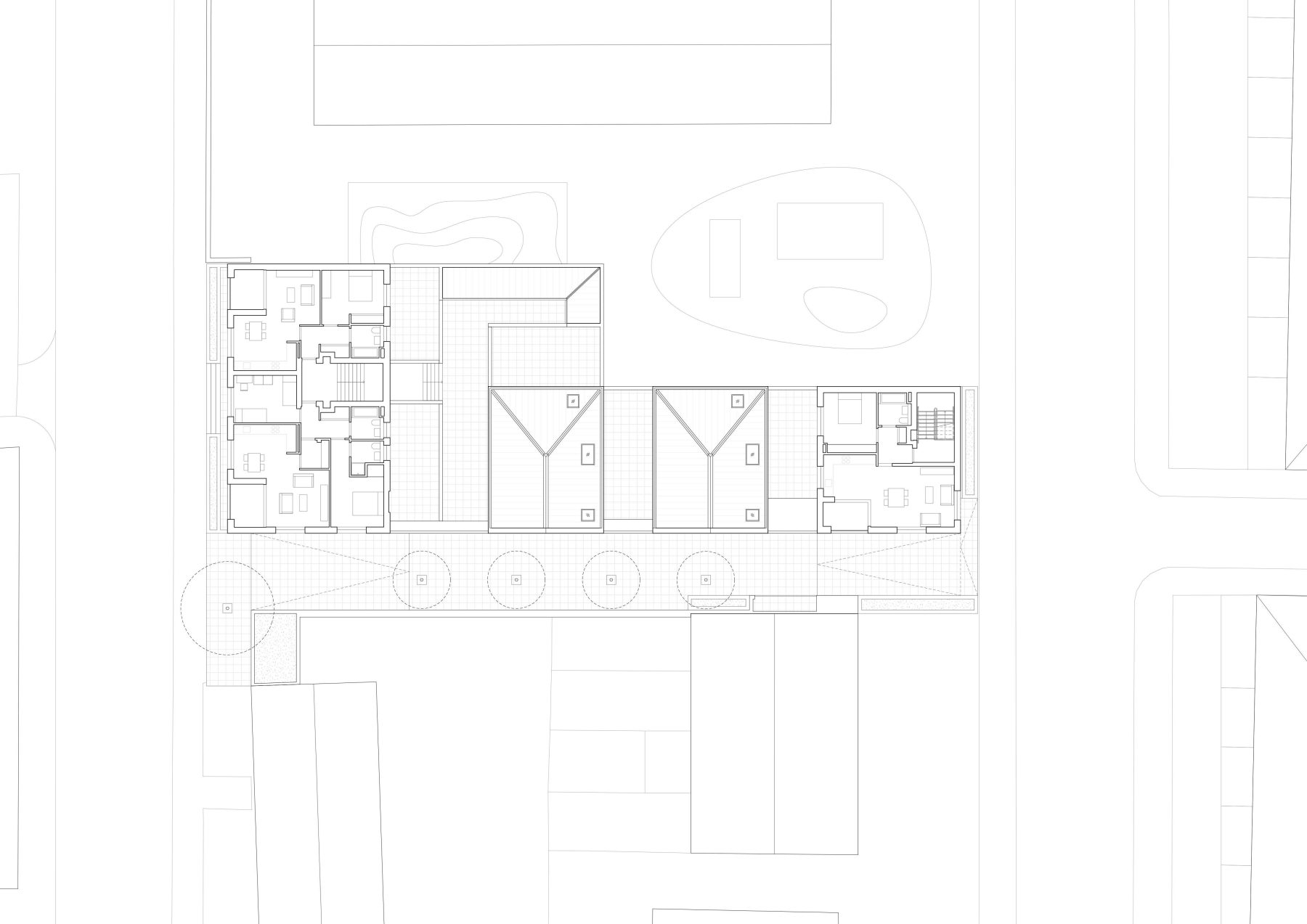
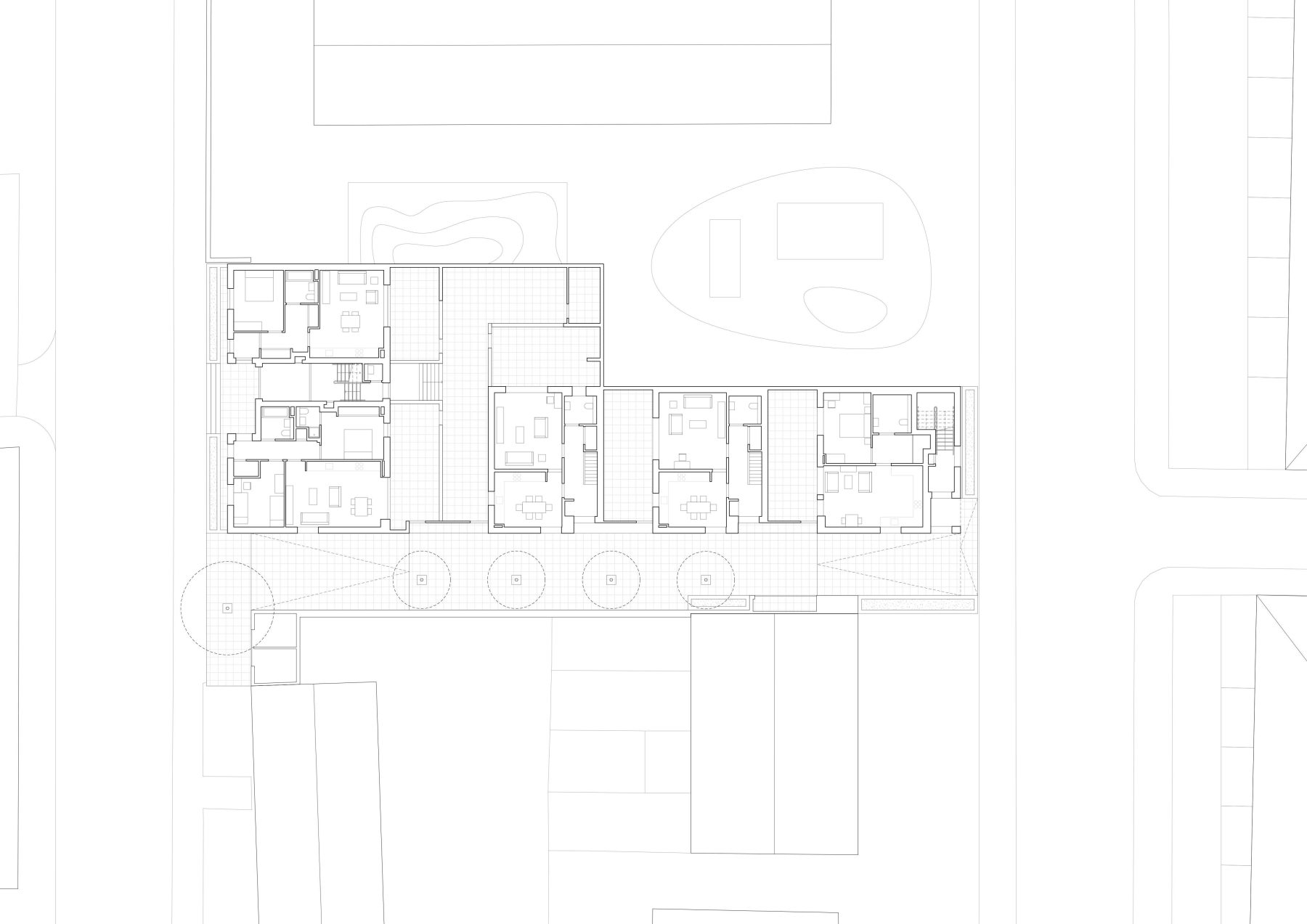
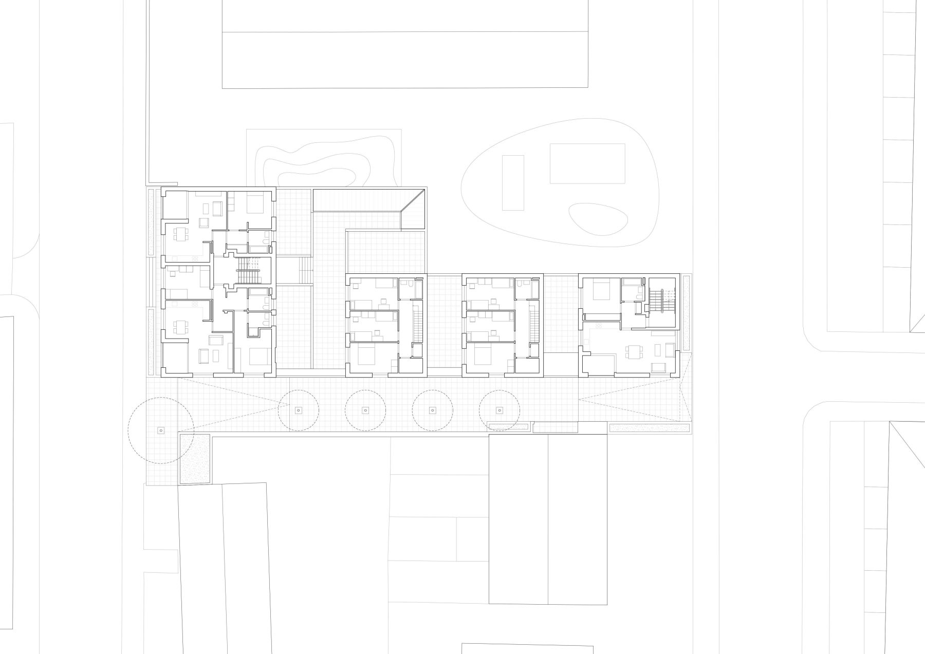
This project forms part of Hackney’s housing supply programme, an initiative which aims to build more than 400 homes – 70 per cent of which will be for social rent and shared ownership. The development delivers eleven new high-quality homes that replace disused garages on Mandeville Street in Lower Clapton. The project was completed in summer 2022.
The site’s unusual shape and complex boundary conditions required a nuanced massing response that blends several typologies into a coherent architectural solution. Urbanistically, the proposal aimed to restitch the site with its surroundings by introducing a new pedestrian thoroughfare that contributes to the reactivation of the public realm, while providing a clear delineation of public and private space. The development forms a townhouse block and mews, unified by their brick materiality and base. A sculptural roofscape of gabled frontages create a distinctive silhouette that echoes the Grade II Listed Mandeville Primary School.
London, UK,
2016,
housing
Back to top